DUDLEY COMMUNITY CHURCH GALLERY

Welcome to the Gallery Page for Dudley Community Church & Counselling Centre

 

Commercial Builders

 

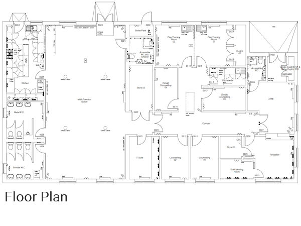
As a commercial builder we often get involved with a project long before it ever comes to site, whether it’s putting together a budget price as part of a pheasability study or simply help a client to cost engineer a scheme that’s coming in a little more expensive than initially planned for. We’ve been in discussions with the church committee for the best part of a year in the lead up to this particular project getting under way and it’s a pleasure to work with them finally making a start on the new counselling centre. The building and services delivered from it are of great importance to the local community, and we are very pleased to play our role. As commercial builders we have a great deal of experience in building this type of facility and relish making a start.

UPDATE: In December 2021, we decided to revisit The Lighthouse Centre as a completed, in use building to meet the people that use the building on a daily basis and see what a difference it’s making to the local community. Learn what Pastor Joe and the team had to say about the benefits of the new centre and how they feel the construction company (Grayson Trade Ltd) performed during the build.

 

Are you looking for a commercial builder to help with your project? Feel free to call us on enquiry@graysontradeltd.co.uk

 

If you would like to find out more about Grayson Trade’s services, have a question or would like us to visit you to discuss your project requirements, please contact us here. We will be pleased to help.

Call us on 01902 595 145 for a FREE quote.